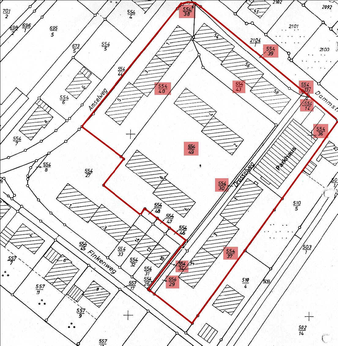
Комплекс
зданий (70 квартир) город Мендиг 1968-70 года
постройки, расположен
на юг от Бонна, в живописном месте недалеко
от озера "Лаахерзее" и известного
монастыря "Мария Лаах"
(Продается способом, подобным аукциону)
Площадь: 12.315 m²
Дальнейшая информация: www.imperia-immo.de , info@imperia-immo.de
|
||
|
||
![]() |
![]() |
![]() |
![]() |
![]() |
![]() |
![]() |
![]() |
![]() |
|
||
![]() |